Keyword
海眺望 □ ガーデニング(家庭菜園) □ 陽当り良好 □ 駐車場有り □ 海徒歩圏 □ 緑が多い □ 角地
Good!!山手の閑静な住宅地所在し、角地ならではの全室2面採光により心地よい陽当たりと通風を確保。2階に設けたLDKは開放感があり、ご家族団欒のひとときはより豊かに演出。さらに令和2年に一部室内クロス&床の張替や、外壁塗装&屋根吹付などの修繕も実施済みです。またガーデニングスペースもあり、四季折々の草花に癒される暮らしが叶います。車庫は頑丈なRC造シャッター付で1台駐車可能。また少しですが海を遠望できます。静けさと快適さを兼ね備え、理想の住まいをお探しの方におすすめの一邸です。
Check●リフォーム歴:一部床、一部クロス貼替、外壁塗装・屋根吹付(令和2年実施済)●道路:幅員約6.0m南側約8.0m接道、幅員約4.0m東側約5.0m接道(角地)☆熱海・湯河原・真鶴・箱根・小田原の不動産売買情報・別荘情報・賃貸情報はワンストップへ☆不動産の買換え、下取り、買取も行っています☆0557-81-5588☆
- 物件番号:
- hs002685
- 主要経路
- 最寄駅:
- 真鶴 /駅からの距離:1.9km (車で 5分)
- アクセス:
- 駅歩:25分
- その他経路
- 最寄駅:
- 湯河原 /駅からの距離:3.2km (車で 9分)
- 敷地
- 所在地:
- 神奈川県足柄下郡湯河原町吉浜
- 敷地面積:
- 125.43m2 (37.94坪)
- 都市計画:
- 非線引区域
- 地目:
- 宅地
- 用途地域:
- 第一種住居地域
- 防火地域:
- 法22・23条地域
- 風致地区:
- 指定無し
- 自然公園法:
- 指定無し
- 特別地区:
- 指定無し
- 他法制限:
- 宅地造成等規制法
- 前面道路:
- 幅員:6m / 南 接道:8m
- 建ぺい率:
- 60%/容積率:200%
- 土地権利:
- 所有権
- 設備
- 水道:
- 公営水道
- 電気:
- その他(任意契約可能)
- ガス:
- 個別プロパン
- 排水:
- 個別浄化槽
- 温泉
- 温泉:
- 不可
- 建物
- 構造:
- 木造スレート葺き
- 築年月日:
- 1989-03-31(平成元年)
- リフォーム:
- 2020
- 階数:
- 地上 2 階
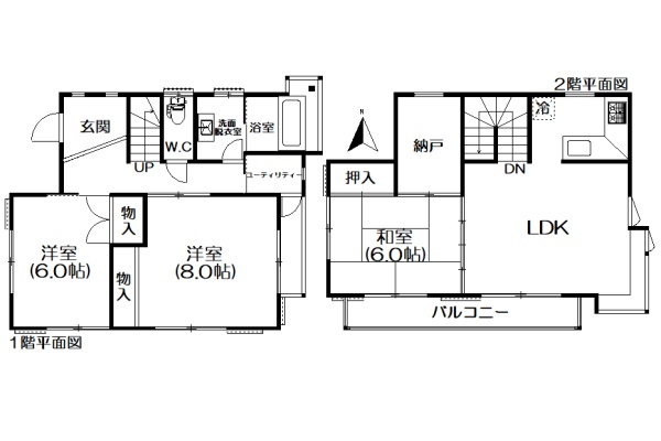
- 間取り:
- 3LDK+S
- 延床面積:
- 88.59m2 (26.8坪)
- ペット:
- 可
- 駐車場:
- 有
- 現況:
- 空
- 現況引渡:
- 相談
- 内見可否:
- 可
- 管理費等
- 管理費:
- 無
- 取引態様:
- 媒介

