Keyword
海眺望 □ 陽当り良好 □ 駐車場有り □ 花火望む □ 市街・夜景望む □ 島望む(初島・大島等) □ 和風建築 □ こだわり物件 □ 緑が多い □ 角地
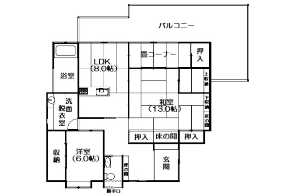
Good!!日本の伝統美が息づく格式高い和風邸宅のご紹介。雪見障子や床の間など和の趣を大切にした空間設計で、落ち着いた雰囲気と上質なくつろぎを実現。また水屋や本格的な和室には、懐かしさとともに日本家屋ならではの重厚な品格が漂います。畳敷きの贅沢な玄関ホールは、まるで高級料亭を思わせ、お客様を特別なひと時へと誘います。さらに、地下には防音室(未登記建物)が設けられ、趣味や音楽鑑賞など多目的なスペースとしてご活用いただけます。伝統の美と現代的な機能性が調和した、贅沢な和邸宅で心豊かな暮らしをお楽しみください。
Check●地下に未登記防音室あり☆熱海・湯河原・真鶴・箱根・小田原の不動産売買情報・別荘情報・賃貸情報はワンストップへ☆不動産の買換え、下取り、買取も行っています☆0557-81-5588☆
- 物件番号:
- hs002688
- 主要経路
- 最寄駅:
- 来宮 /駅からの距離:3km (車で 7分)
- その他経路
- 最寄駅:
- 熱海 /駅からの距離:1km (車で 13分)
- 敷地
- 所在地:
- 静岡県熱海市西熱海
- 敷地面積:
- 480.5m2 (145.35坪)
- 都市計画:
- 非線引区域
- 地目:
- 宅地
- 用途地域:
- 第一種中高層住居専用地域
- 防火地域:
- 法22・23条地域
- 風致地区:
- 第2種風致地区
- 自然公園法:
- 指定無し
- 特別地区:
- 娯楽レクリエーション地区(2種)
- 他法制限:
- がけ条例,宅地造成等規制法
- 前面道路:
- 幅員:4m / 南西 接道
- 建ぺい率:
- 40%/容積率:200%
- 土地権利:
- 所有権
- 設備
- 水道:
- 公営水道
- 電気:
- その他(任意契約可能)
- ガス:
- 都市ガス
- 排水:
- 本下水
- 温泉
- 温泉:
- 不可
- 建物
- 構造:
- 木造合金メッキ鋼板葺き
- 築年月日:
- 2006-04-30(平成18年)
- 階数:
- 地上 1 階
- 間取り:
- 2LDK
- 延床面積:
- 107.13m2 (32.41坪)
- 駐車場:
- 有
- 現況:
- 別荘利用中
- 現況引渡:
- 相談
- 内見可否:
- 可
- 管理費等
- 管理費:
- 無
- 取引態様:
- 媒介

