Keyword
海眺望 □ 温泉付(温泉可含む) □ 陽当り良好 □ 富士山眺望 □ 緑が多い
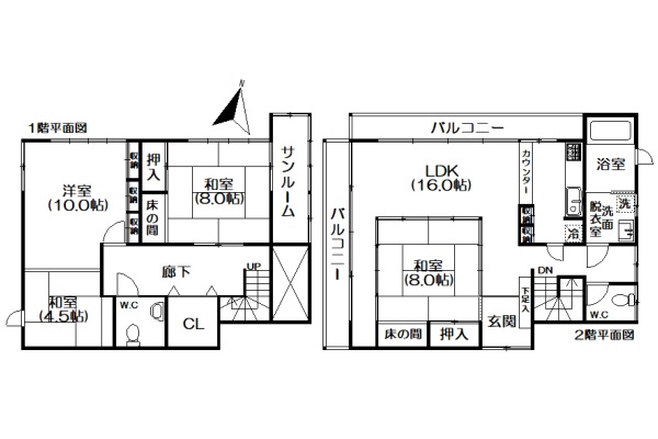
Good!!海と富士山、そしてきらめく夜景を一望できる特別なロケーションの中古戸建。駐車場完備でアクセスも便利。お手入れの行き届いた清潔な室内は、16帖の広々としたLDKと和室に隣接した二面大開口サッシから、四季折々の風景と開放感に包まれます。自慢は、浴室からも臨める圧巻の眺望。湯船に浸かりながら、目前に広がる海や雄大な富士山、夜には瞬く街の灯りを独り占めできます。さらに、温泉の引き込みが可能なので、ご自宅で本格的な温泉気分を堪能することも夢ではありません。
Check●道路:南側幅員6mに16m接道・北側幅員7m公道に16m接道●温泉権なし(復活可)☆熱海・湯河原・真鶴・箱根・小田原の不動産売買情報・別荘情報・賃貸情報はワンストップへ☆不動産の買換え、下取り、買取も行っています☆0557-81-5588☆
- 物件番号:
- hs002751
- 主要経路
- 最寄駅:
- 熱海 /駅からの距離:12.3km (車で 25分)
- 敷地
- 所在地:
- 静岡県田方郡函南町平井
- 分譲地名:
- 南箱根ダイヤランド
- 敷地面積:
- 295.82m2 (89.49坪)
- 都市計画:
- 市街化調整区域
- 地目:
- 宅地
- 用途地域:
- 無指定
- 前面道路:
- 幅員:6m / 南 接道:14m
- 建ぺい率:
- 40%/容積率:80%
- 土地権利:
- 所有権
- 設備
- 水道:
- 公営水道
- 電気:
- その他(任意契約可能)
- ガス:
- 個別プロパン
- 排水:
- 個別浄化槽
- 温泉
- 温泉:
- 可
- 建物
- 構造:
- 木造瓦葺き
- 築年月日:
- 1988-08-30(昭和63年)
- 階数:
- 地上 2 階
- 間取り:
- 3LDK+S
- 延床面積:
- 134.96m2 (40.83坪)
- 駐車場:
- 有
- 現況:
- 空
- 現況引渡:
- 即可
- 内見可否:
- 可
- 管理費等
- 管理費:
- 無
- 環境整備費:
- 68,387円/年
- 固定資産税:
- 48,600円/年
- 取引態様:
- 媒介

