Keyword
海眺望 □ 陽当り良好 □ 駐車場有り □ 島望む(初島・大島等)
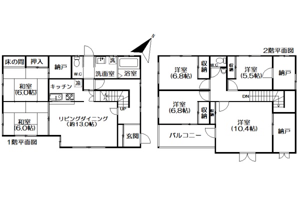
Good!!リフォーム済みの6SLDK中古戸建。各居室の収納に加え、3つの納戸付きで収納力抜群です。南東向きの13帖リビングダイニングは開放的な設計で、陽当たり・通風ともに良好。ご家族でゆったり寛げる2間続きの和室も魅力です。暮らしやすさと快適さを両立できる間取りで、大家族や荷物の多い方にもおすすめです。
Check☆熱海・湯河原・真鶴・箱根・小田原の不動産売買情報・別荘情報・賃貸情報はワンストップへ☆不動産の買換え、下取り、買取も行っています☆0557-81-5588☆
- 物件番号:
- hs002713
- 主要経路
- 最寄駅:
- 熱海 /駅からの距離:3.9km (車で 11分)
- 敷地
- 所在地:
- 静岡県熱海市伊豆山
- 敷地面積:
- 199.24m2 (60.27坪)
- 都市計画:
- 非線引区域
- 地目:
- 宅地
- 用途地域:
- 第二種中高層住居専用地域
- 前面道路:
- 幅員:6m / 北 接道:3m
- 建ぺい率:
- 60%/容積率:200%
- 土地権利:
- 所有権
- 設備
- 水道:
- 公営水道
- 電気:
- その他(任意契約可能)
- ガス:
- 個別プロパン
- 排水:
- 個別浄化槽
- 温泉
- 温泉:
- 不可
- 建物
- 構造:
- 木造
- 築年月日:
- 2001-09-30(平成13年)
- 階数:
- 地上 2 階
- 間取り:
- 6LDK+S
- 延床面積:
- 158.42m2 (47.92坪)
- 駐車場:
- 有
- 現況:
- 空
- 現況引渡:
- 相談
- 内見可否:
- 可
- 管理費等
- 管理費:
- 無
- 取引態様:
- 媒介

