Keyword
海眺望 □ ガーデニング(家庭菜園) □ 陽当り良好 □ 駐車場有り □ 洋風建築 □ こだわり物件
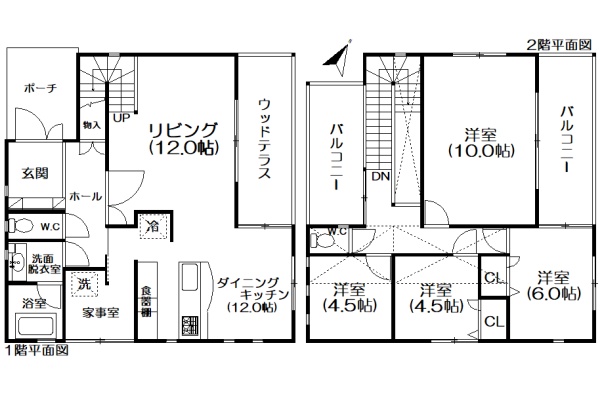
Good!!平成19年築の4LDKオール電化住宅のご紹介です。小学校・幼稚園が目の前にあり、子育て世代に最適な立地。1階にはウッドテラス、2階は両面バルコニー付きで開放感たっぷり。リビングは吹抜け仕様で、白を基調とした清潔感ある室内が広がります。大きな開口部が多く、自然光がたっぷり差し込む明るい居室も魅力。2階からは少し海も望め、季節の打ち上げ花火を自宅から楽しむことも可能です。また手続きにより温泉の引込みも可能。家族の笑顔があふれる特別な住まい、ぜひご検討ください。
Check☆熱海・湯河原・真鶴・箱根・小田原の不動産売買情報・別荘情報・賃貸情報はワンストップへ☆不動産の買
- 物件番号:
- hs002766
- 主要経路
- 最寄駅:
- 伊豆多賀 /駅からの距離:1.2km
- アクセス:
- 駅歩:19分
- その他経路
- 最寄駅:
- 網代
- アクセス:
- 駅歩:23分
- 敷地
- 所在地:
- 静岡県熱海市下多賀
- 敷地面積:
- 204.49m2 (61.86坪)
- 都市計画:
- 非線引区域
- 地目:
- 宅地
- 用途地域:
- 第二種住居地域
- 防火地域:
- 法22・23条地域
- 風致地区:
- 指定無し
- 自然公園法:
- 指定無し
- 特別地区:
- 指定無し
- 他法制限:
- がけ条例,宅地造成等規制法
- 前面道路:
- 幅員:4m / 南西 接道
- 建ぺい率:
- 60%/容積率:200%
- 土地権利:
- 所有権
- 設備
- 水道:
- 公営水道
- 電気:
- その他(任意契約可能)
- ガス:
- 排水:
- 個別浄化槽
- 温泉
- 温泉:
- 可
- 権利金保証料:
- 473,000円
- 使用料(月額):
- 18,932円
- 建物
- 構造:
- 木造亜鉛メッキ鋼板葺き
- 築年月日:
- 2007-07-31(平成19年)
- 階数:
- 地上 2 階
- 間取り:
- 4LDK
- 延床面積:
- 116.32m2 (35.19坪)
- ペット:
- 可
- 駐車場:
- 有
- 現況:
- 空
- 現況引渡:
- 相談
- 内見可否:
- 可
- 管理費等
- 管理費:
- 無
- 取引態様:
- 媒介

